GRS ARKITEKTUR

KONTAKTFORMULÄR
" />
INFO PROJEKT BIO METOD

Arkitekt Helsingborg

Erfarna och professionella arkitekter i Helsingborg med fokus på modern arkitektur med naturliga och ekologiska material.

Anlita en arkitekt i Helsingborg

Välkommen till Greger Stetz Arkitektur,

Hos oss arbetar arkitekter i Helsingborg med bred kompetens och lång erfarenhet av olika typer av arkitekturarbeten. Vi arbetar med en lång rad olika byggnationer och projekt – med privatpersoner såväl som företag, organisationer och föreningar i varierande storlekar och branscher. För varje år vänder sig allt fler personer som letar efter en arkitekt i Helsingborg till oss på Greger Stetz. Vi är mycket stolta över denna utveckling och över den position vi har idag.

När du väljer oss som din arkitekt i Helsingborg kommer vi att fungera som det första steget i ert byggprojekt. Vi ritar och utvecklar en lösning som är helt anpassad utefter din budget, dina behov och dina förväntningar.

Fyll i vårt kontaktformulär för att komma i kontakt med oss och/eller för att berätta om dina byggplaner!

Hur jobbar en arkitekt - länk till beskrivning av vår metod.


01 VIENNA HOUSE OF MUSIC:

PROJEKTBESKRIVNING ▼

02 VILLA BEDDINGESTRAND

PROJEKTBESKRIVNING ▼

03 VILLA ANG

PROJEKTBESKRIVNING ▼

04 VILLA AE

PROJEKTBESKRIVNING ▼

05 TINNY KYRKA I KÖPENHAMN

PROJEKTBESKRIVNING ▼

05 LUND RESTAURANG

PROJEKTBESKRIVNING ▼

06 GÖTEBORG HANDELSHÖGSKOLAN

PROJEKTBESKRIVNING ▼

07 FALSTERBO VILLA OMBYGGNAD

PROJEKTBESKRIVNING ▼

08 BUNGALOW TREEHOSUE

PROJEKTBESKRIVNING ▼

09 MALMÖ GAMLA VÄSTER VINDSOMBYGGNAD

PROJEKTBESKRIVNING ▼

08MALMÖ TILLBYGGNAD

PROJEKTBESKRIVNING ▼

10 TILLBYGGNAD UB

PROJEKTBESKRIVNING ▼

11 LAGER MED MARIN KÄNSLA

PROJEKTBESKRIVNING ▼

12PANTA REI

PROJEKTBESKRIVNING ▼

13 SLAKTHUSOMRÅDET- CONTEMPORARY BAR AND RESTAURANT

PROJEKTBESKRIVNING ▼

14 NYA VILLOR I SKANÖR MED HAVSUTSIKT

PROJEKTBESKRIVNING ▼

15 PERPETUUS

PROJEKTBESKRIVNING ▼

16 VILLA JK

PROJEKTBESKRIVNING ▼

17 LOOMA TILLBYGGNAD AV ENBOSTADSHUS

18 FRITIDSHUS TILLBYGGNAD

PROJEKTBESKRIVNING ▼

19VILLA LN

PROJEKTBESKRIVNING ▼

20 KLAGGERÖD

PROJEKTBESKRIVNING ▼

21VILLA JE

PROJEKTBESKRIVNING ▼

22VOLCANO RESTAURANG

PROJEKTBESKRIVNING ▼

23 SCHOOL OF MUSIC

PROJEKTBESKRIVNING ▼

24 TREEHOUSE

PROJEKTBESKRIVNING ▼

25 KONST

PROJEKTBESKRIVNING ▼

Hur man genomför sitt projekt (guide):

Det är alltid spännande att engagera sig i ett byggprojekt. Dock när man påbörjar det kan det dyka upp många frågor, och processen verkar komplicerad. Här är en guide om hur du kan genomföra ditt projekt från idé till nyckelfärdigt hus..

1. Idé och Behov::

Alla projekt börjar med idéer som uppstår ur ett behov – ett nytt hus, ett köksrenovering, mer boyta eller en effektivare planlösning och inredning. Arkitekturens primära funktion är att skydda oss från yttre klimatpåverkan, vilket ofta uttrycks som att den ger oss ett "tak över huvudet". Men arkitekturen tjänar inte bara denna grundläggande funktion, den tillgodoser också våra mentala och estetiska behov. Vårt hem, denna plats som vi kallar vårt eget, har särskilda associationer och betydelser för oss.

2. Konsultation med Arkitekt:

Nästa steg i processen är att konkretisera detta behov till ett fysiskt objekt. Det är klokt att kontakta en arkitekt för att diskutera dina idéer. Med sin kompetens och erfarenhet från många projekt kan en arkitekt bidra med nya och innovativa lösningar. Om du har frågor eller funderingar om ditt projekt, tveka inte att kontakta oss!

3. Skissförslag:

Efter det första mötet där du delar dina förutsättningar, kommer arkitekten att ta fram preliminära skisser för ditt projekt. Dessa skisser diskuteras tillsammans och anpassas tills de når en slutgiltig version.

4. Bygglovsansökan:

När skissarbetet är avklarat, är nästa steg att ansöka om bygglov. I bygglovsansökan specificerar du vem som kommer att vara ansvarig för att kontrollera projektet. Vi på Grs Arkitektur tar både rollen som arkitekt och kontrollansvarig, vilket garanterar att resultatet uppfyller din ursprungliga idé. Som kontrollansvariga säkerställer vi att projektet följer branschstandarder och har en estetiskt tilltalande design.

5. Tekniska Handlingar:

Efter beviljat bygglov behöver du tekniska handlingar, såsom konstruktionsritningar och VVS-ritningar. Vi tillhandahåller även dessa handlingar. Genom att ha samma team som arkitekter och kontrollansvariga sparar du tid och undviker missförstånd.

6. Byggstart och Kontrollplan:

När de tekniska handlingarna är klara, utfärdar kommunen ett besked som tillåter starten av byggprojektet. Samtidigt tar vi fram en kontrollplan som specificerar de olika kontroller som kommer att utföras under byggtiden för att säkerställa att arbetet följer ritningarna och branschstandarder.

7. Avslutning:

När projektet närmar sig sitt slut, kallas en representant från kommunen till ett avslutande samråd. Efter detta beslutar kommunen att byggnaden kan tas i bruk. Tveka inte att kontakta oss om du har några frågor angående ditt projekt!

Användbara länkar: :

1. Svergies Arkitekter
2. Boverket - mycket information om gällande regel och bygglov processen
3. Ytteligare förklarning vad gör en arkitekt.
4. Hur jobbar en arkitekt - länk till beskrivning av vår metod.
5. Om du vill bil arkitekt?

Så arbetar våra arkitekter i Helsingborg



Efter många år i branschen så har vi skapat oss en kompetensbredd som gör att våra arkitekter i Helsingborg kan leverera på alla nödvändiga plan. Gott arkitekturarbete förutsätter nämligen hög kvalitet på flera olika punkter, nämligen:

Estetik

Under åren som flitigt anlitad arkitekt i Helsingborg har vi ritat mängder av olika byggnationer. Vi vet att estetiken är central, och en absolut förutsättning för goda resultat inom allt arkitektarbete. Därför är den ständigt närvarande för oss på Greger Stetz. Vårt team av arkitekter i Helsingborg ritar estetiskt tilltalande byggnader i nära samarbete med beställaren i fråga. På detta vis kan vi säkerställa att lösningen matchar de önskemål och förhoppningar som finns gällande estetiken. Läs mer om och se bilder från de olika projekt vi utfört längre upp på sidan.

Funktionalitet

Förutom att vi alltid söker leverera bästa möjliga resultat gällande estetik så är funktionalitet en aspekt vi alltid tar i beaktande i alla projekt vi tar oss ann. De byggnationer i Helsingborg som vårt team av arkitekter tar sig an är alltid väl genomtänkta från början. Vårt arbete cirkulerar hela tiden kring att beställarens önskemål gällande funktionalitet ska införlivas. Vi har många exempel utförda projekt - nybyggnationer såväl som ombyggnationer och tillbyggnationer - där detta faktum blir tydligt. Fyll i vårt kontaktformulär för att veta mer om hur våra arkitekter i Helsingborg arbetar för maximal funktionalitet.

Professionalism

Sist men inte minst vill vi betona att de beställare som vänder sig till våra arkitekter i Helsingborg kan vänta sig ett professionellt samarbete från start till mål. Vår verksamhet och våra tjänster bygger på just detta. Vi strävar alltid efter att uppnå ett transparent och nära samarbete med alla kunder som vi arbetar med. Detta gäller för såväl små som stora projekt. Det gäller för privatpersoner såväl som företag, myndigheter eller vilken typ av organisation det kan röra sig om. Efter många år som arkitekt i Helsingborg vet vi vilka olika beståndsdelar som krävs för lyckade arkitektsamarbeten. Från planering och prissättning till utförande och kontinuerlig återkoppling. Hör av dig till oss via kontaktformuläret för att veta mer om hur vi arkitekterna på Greger Stetz i Helsingborg arbetar!

Arkitekt i Helsingborg - Projekt

Funderar du på att anlita oss som arkitekt för ditt projekt i Helsingborg? Då är du säkert intresserad av att veta mer vilka du har att göra med. Vi berättar gärna om vår verksamhet och tycker att detta görs bäst genom att visa upp våra arbeten.

Referensarbeten

I denna text kan du ta del utav några av de arbeten som våra skickliga arkitekter i Helsingborg har utfört. Om du har frågor om eller vill ha mer information/bilder från något projekt; vänligen kontakta oss via kontaktformuläret.

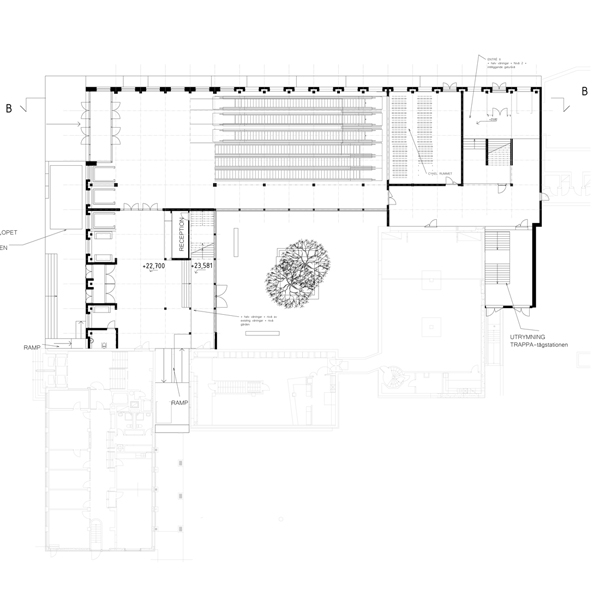
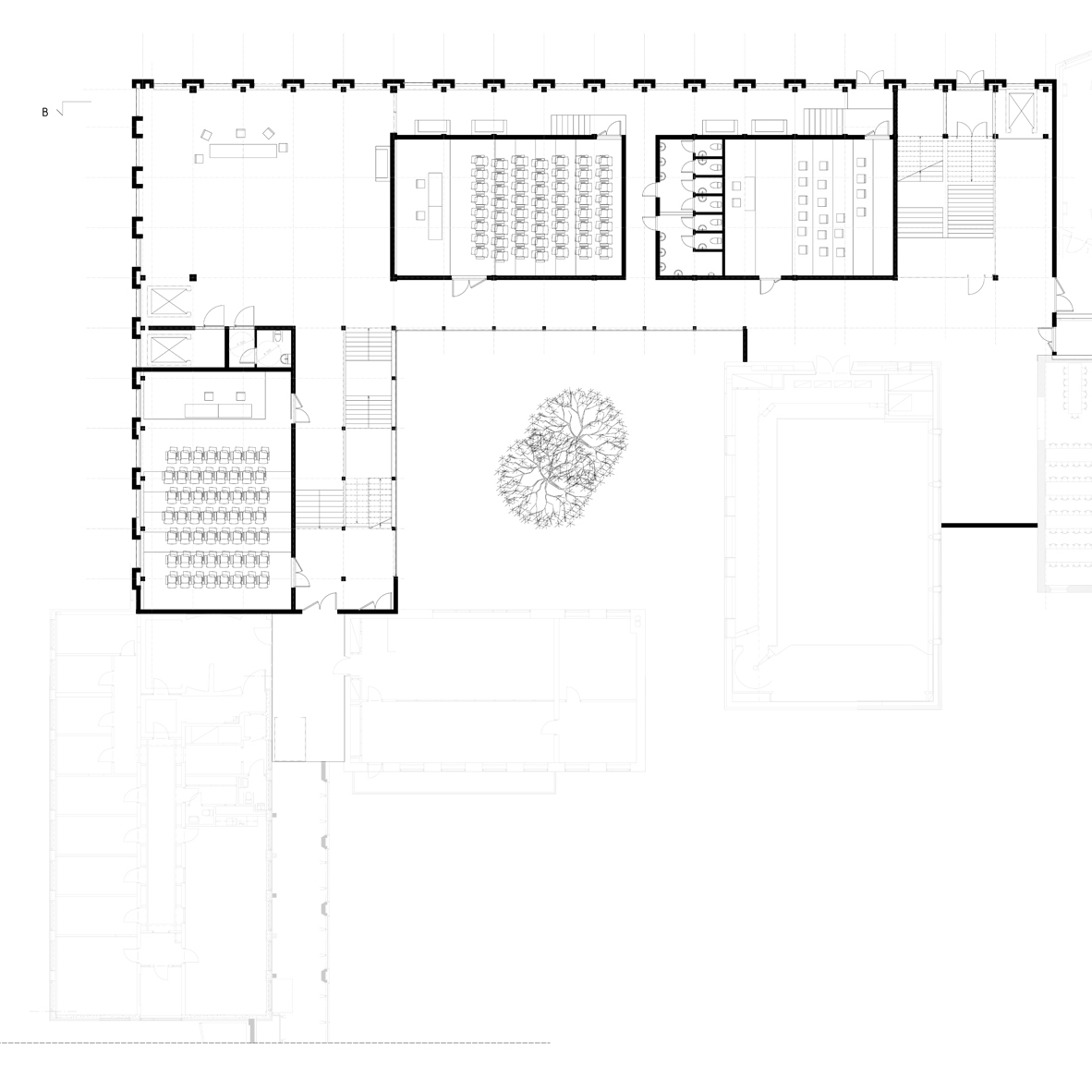
Vienna House of Music

Denna byggnad som tagits fram av våra arkitekter i Helsingborg ligger i den vackra kommunala parken Stadtpark i Wien. Det är en multifunktionell byggnad med konserthall såväl som musikskola. Byggnaden är ritad så att dess estetik ska ligga i linje med den existerande natur som omger den och samtidigt verka som ett urbant avslut där parken möter staden. Vienna House of Music har en tydlig, robust struktur och är konstruerad av armerad betong.

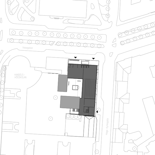
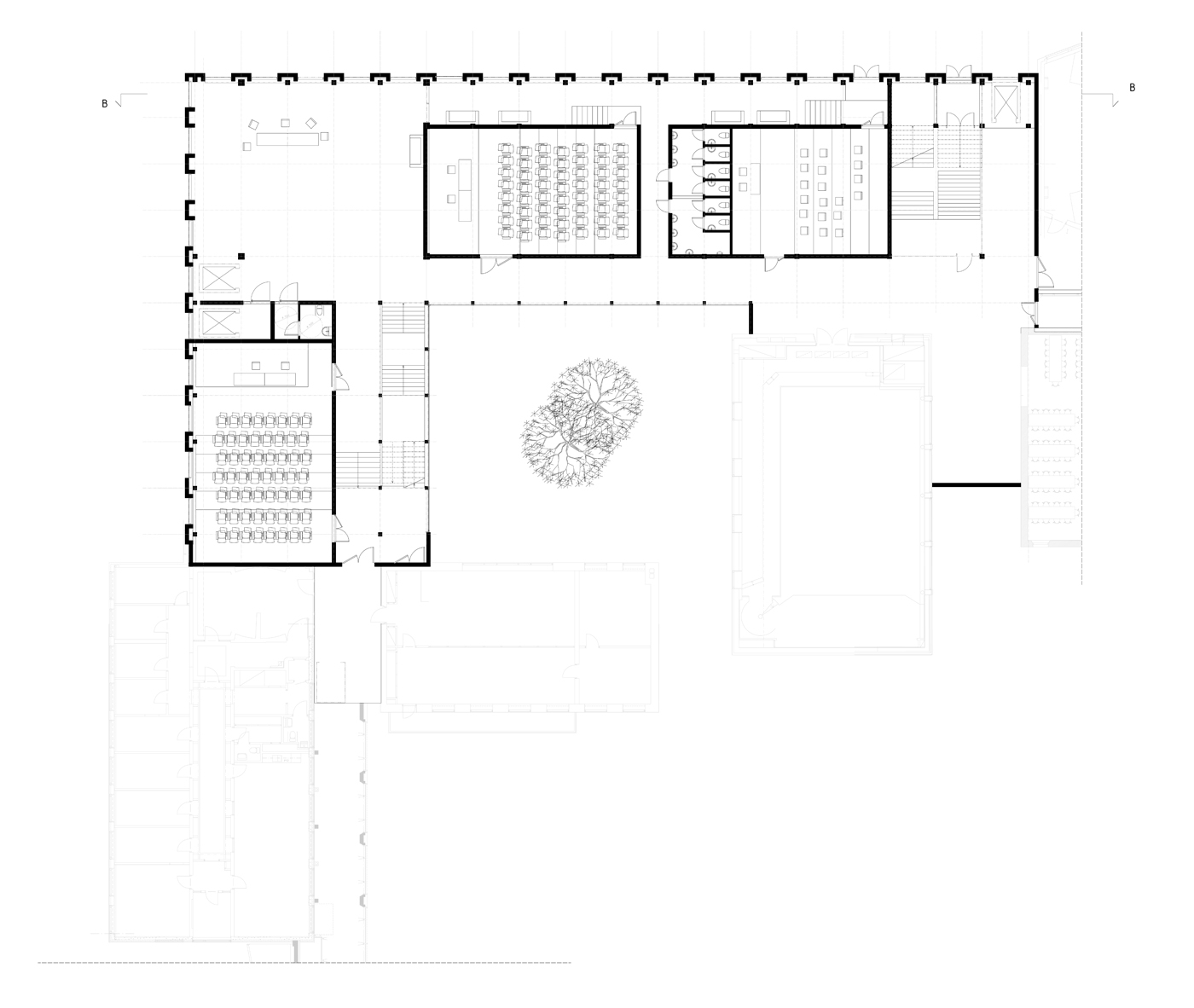
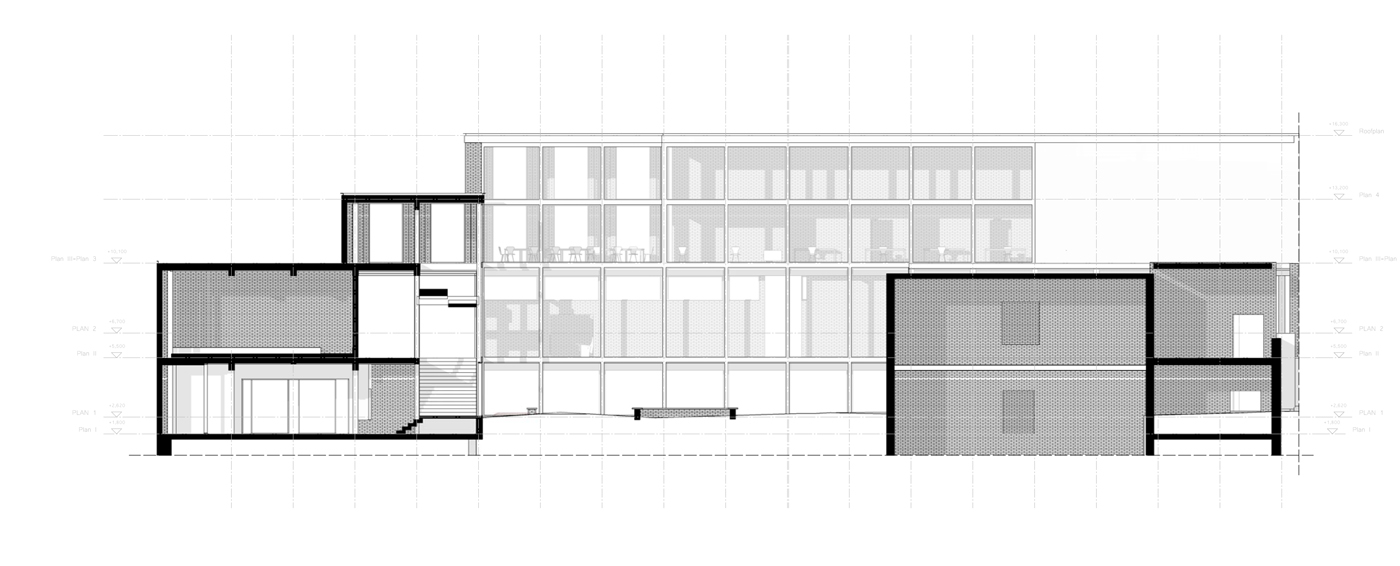
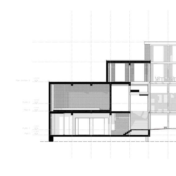
Handelshögskolan i Göteborg

Två kvaliteter möts i denna vackra byggnad som våra arkitekter från Greger Stetz i Helsingborg har arbetat med: Vertikalitet och Horisontalitet. Byggnadens typologi sticker ut från andra byggnader i omgivningen. Detta gör att den får en intressant roll som bidrar till en känsla av variation i den stadsdel i vilken den ligger.

Slakthusområdet Restaurang, Helsingborg

Ett av de mest experimentella projekt som våra arkitekter i Helsingborg varit inblandade i. Traditionell murningsteknik möter samtida kontext, och man söker föra en rumslig dialog med de industribyggnader som omger tomten.

Varierande projekt

Som erfaren arkitekt i Helsingborg kan man ställas inför en lång rad olika typer av projekt. Något vi varit inne på tidigare i denna text är att vi på Greger Stetz antar alla utmaningar vi möter. Vi vill gärna betona detta ännu en gång eftersom det är centralt, inte bara för oss utanför hela vårt yrke. Vi anser att det finns en skyldighet att, som arkitekt i Helsingborg, anta varierande projekt. Det är just därför detta har varit så centralt för oss redan från starten av verksamheten. När du vänder dig till en arkitekt i Helsingborg från Greger Stetz Arkitektur så kan du räkna med ett väl utfört arbete - hela vägen från plan till genomförande.

Nybyggnation

Vårt team tar sig gärna an nybyggnationer av såväl villor som offentliga byggnader och andra typer av konstruktioner. Detta är något som vi har arbetat med under många år, och som vi har bred erfarenhet inom.

Tillbyggnation

Tillbyggnationer tillhör ett av de projekt som våra arkitekter i Helsingborg har längst erfarenhet och störst kunskap inom. Vi arbetar med både privata kunder och företag för att bygga ut och optimera befintliga byggnader.

Ombyggnation

Ibland kan en ombyggnation av en befintlig byggnad generera minst lika goda resultat som en nybyggnation. Vårt team står till förfogande för alla som önskar genomföra denna typ av projekt.